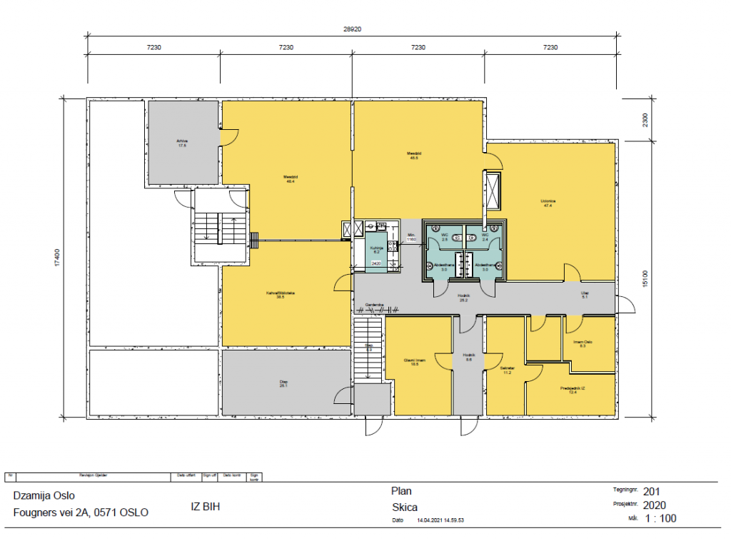
Ovog ljeta ćemo uz Božiju pomoć renovirati WC, abdesthanu, kuhinju i hodnik u našoj džamiji.
Pravimo dva potpuno odvojena WC-a – muški i ženski, sa dvije potpuno odvojene abdesthane.
Kuhinju renoviramo iz temelja kako bi je učinili što praktičnijom.
U hodniku mijenjamo pločice i postavljamo podno grijanje.
Planiramo da radovi budu završeni tokom ljeta i da sljedeću školsku godinu počnemo u boljim uslovima i bez korone ako Bog da.
Jedan dio sredstava za renoviranje već imamo obezbjeđenim hvala Bogu tako da možemo početi sa radovima.
Uz nadu da vam se sviđa ovaj projekat pozivamo vas da svojim dobrovoljnim novčanim prilogom učestvujete u ovoj hajirli akciji.
Uplate možete vršiti na konto Oslo Emanet Fonda: 1503 62 08942 ili preko Vipps-a: 585506 sa porukom RENOVACIJA ili direktno u džamiji.
Da Vam dragi Allah dž.š. nadoknadi u zdravlju, rahatluku i veselju, Amin!


